您好,欢迎来到网站! 设为首页 | 加入收藏

工程展示 有什么问题欢迎您随时反馈
装修资讯
装修案例
装修报价
工程展示
效果图设计
全屋家具定制
联系我们
在线报名
联系我们

北京燕郊鑫盛峰装饰工程有限公司
地址:燕郊开发区
QQ:88886666
手机:13393369502

 
  工程展示
燕郊天子庄园二期44号楼装修施工
时间:2024-11-07 14:51:03 浏览:112次

1.燕郊天子庄园二期44号楼装修施工日志

本施工为自住简单型装修住房

130平米大包简装

燕郊天子庄园小区装修许可证

户型图

天子庄园二期三居室户型图

 

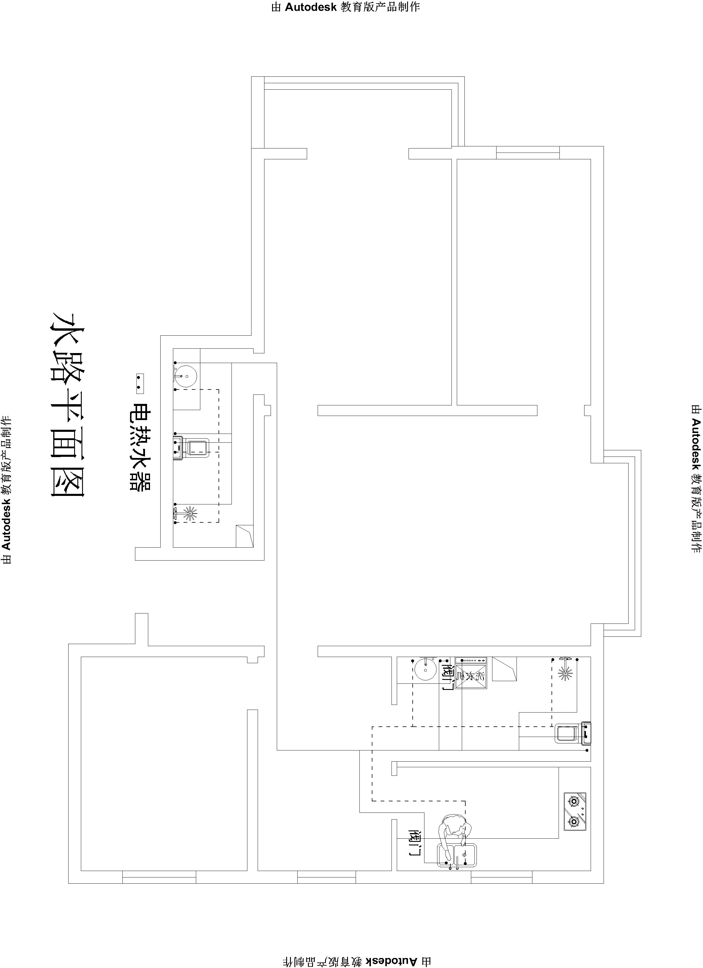
2.卫生间墙体拆除,厨房开门洞,水电路改造,左右老旧水管废除,水管新改。天子庄园改水电

 

3.卫生间刷二次防水,轻体砖包卫生间下水立管,厨房贴墙砖准备工作,墙面拉毛抹灰。天子庄园做防水

 

 4.卫生间二次防水做蓄水试验,下水地漏处封堵住,蓄水2-3公分,48小时无渗水为合格,厨房开始贴墙砖。

 

天子庄园闭水试验


5.二次防水验收完毕,铺砖进行中,铺砖的顺序,先厨房墙砖-卫生间墙砖-厨卫地砖-大地砖

铺瓷砖的顺序

 整体瓷砖铺贴完毕

 

墙顶面披刮腻子,阴阳角找直

天子庄园小区刮腻子

 

装修资讯 | 装修案例 | 装修报价 | 工程展示 | 效果图设计 | 全屋家具定制 | 联系我们 |
Copyright (C) 2009-2022 All Rights Reserved. 鑫盛峰装饰公司 冀ICP备2021028288号
  • 执照查询
分享按钮 冀公网安备13108202001195号